Trilocale in vendita

Napoli, Via Francesco Crispi - Chiaia
€ 400.000
3 locali 3 locali
100 Mq 100 Mq
2 bagni 2 bagni

Trilocale in vendita

Napoli, Via Francesco Crispi - Chiaia

Descrizione annuncio

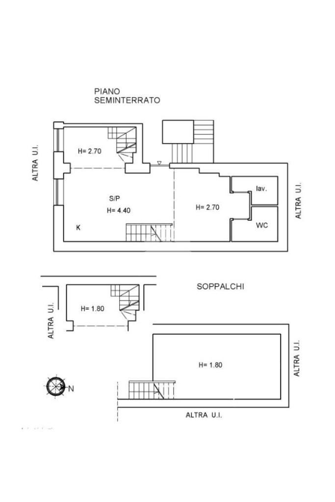
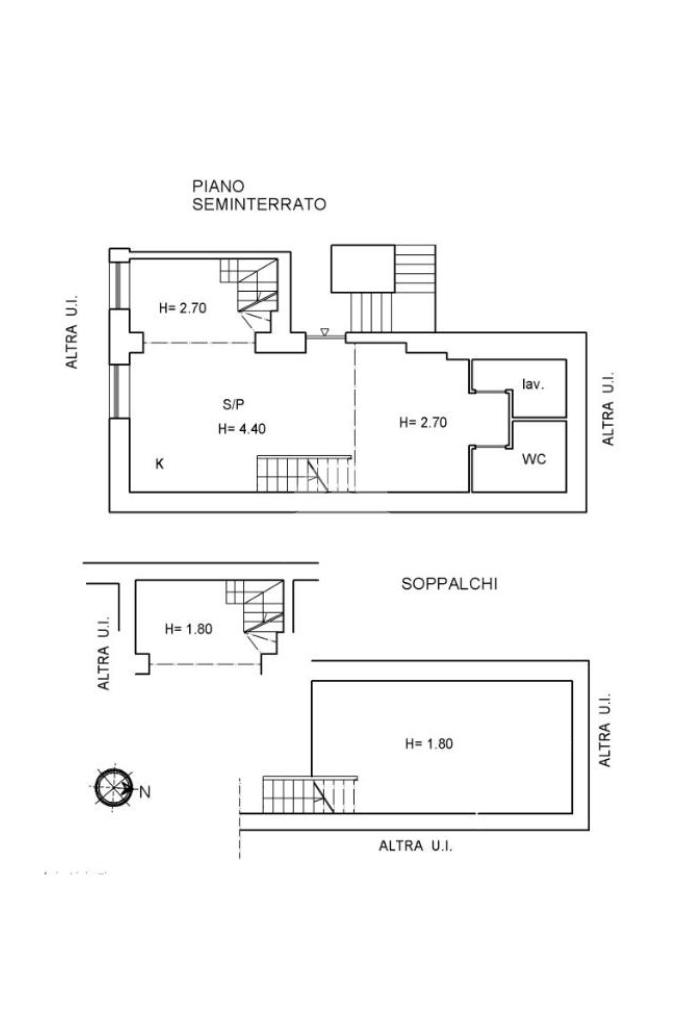
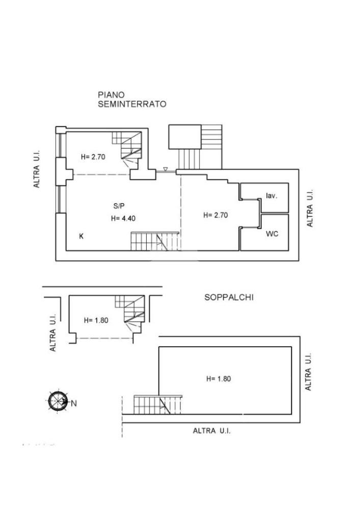
Nel cuore di Chiaia,in via Francesco Crispi, all’interno di un palazzo neorinascimentale con dettagli liberty Tecnorete Crispi è lieta di proporre in vendita un appartamento ristrutturato di 100 mq.
L’ingresso del palazzo si apre su un balconcino panoramico che regala un’accoglienza suggestiva. L’abitazione si sviluppa a scendere rispetto all’ingresso del palazzo, sfruttando la particolare struttura per creare ambienti ampi e dinamici su due livelli

Ci troviamo a pochi passi da Piazza Amedeo perfettamente servita dai mezzi pubblici – metropolitana, funicolare e autobus.

L’abitazione si sviluppa su due livelli grazie a due soppalchi strutturali che valorizzano la generosa altezza interna. L’ingresso apre su un living moderno con cucina a vista, un ambiente ampio pensato per chi ama uno stile moderno e molto contemporaneo. La zona notte è composta da due camere da letto, una delle quali con bagno privato in camera completo di vasca, doccia e doppio lavabo. Al livello principale troviamo anche un bagno di servizio, una lavanderia e un comodo ripostiglio.

L’immobile rappresenta una soluzione ideale per giovani professionisti o coppie, per chi cerca un’abitazione pronta all’uso in zona Chiaia, o per chi desidera fare un investimento di valore nel mercato immobiliare di Napoli.

Visionabile previo avviso telefonico chiamando il numero 08118677720 oppure contattandoci via mail all'indirizzo: na1a5 o tramite WhatsApp al numero +3908118677720 . Presso la nostra agenzia Tecnorete, è possibile su richiesta, grazie ai professionisti della società di mediazione creditizia del gruppo Kiron , ricevere una consulenza gratuita ed accedere ad un'ampia gamma di prodotti creditizi e assicurativi come: -Mutui prima, seconda casa e ristrutturazione -Sostituzione o Surroga del Mutuo -Prestiti Personali -Cessioni del Quinto dello Stipendio o Pensione -Consolidamento Debiti -Prodotti Assicurativi per la Famiglia, ramo Danni e Vita. LA CONSULENZA È GRATUITA. Ogni agenzia ha un proprio titolare ed e' autonoma - Le presenti informazioni non costituiscono elemento contrattuale.

Mostra tutto

Nelle vicinanze

Trasporto pubblico Trasporto pubblico
Municipio
Municipio
730 m
Municipio - Porto di Napoli
Municipio - Porto di Napoli
770 m
Napoli Piazza Amedeo
Napoli Piazza Amedeo
1,1 Km
Montesanto
Montesanto
1,3 Km
ANM - Capolinea Stazione Marittima
ANM - Capolinea Stazione Marittima
980 m
Scuole Scuole
Scuole
320 m
Scuola Militare Nunziatella
350 m
Liceo Artistico F.Palizzi
380 m
Scuole
380 m
Università SOB - Facoltà di Lettere
400 m
Farmacia Farmacia
Farmacia
160 m
Farmacia Aquila Reale
390 m
Farmacia Augusteo
410 m
Farmacia Liguori
520 m
Farmacia D'Atri
640 m
Ospedali Ospedali
ASL NA1 - Poliambulatorio
580 m
Ospedale dei Pellegrini
1,3 Km
Casa di Cura Ospedale Internazionale Villa Benti
1,5 Km
ex Ospedale Clinico Gesù e Maria
1,7 Km
Università SUN - Policlinico
1,8 Km
Supermercati Supermercati
Supermercati
320 m
Superò
480 m
Carrefour
630 m
Sole 365
810 m
Conad City
830 m
Negozi Negozi
Cool Type
50 m
Madi
50 m
Intimissimi
60 m
Primo Emporio
60 m
OVS Kids
70 m
Bar Bar
Cerasella
190 m
IlVero Bar del Professore
310 m
La Caffettiera
330 m
Cantine Sociali
340 m
Spritz Spuzzule
360 m
Ristoranti Ristoranti
Antica Trattoria da Ettore
60 m
Osteria Don Maccarone
70 m
Amici Miei
90 m
Osteria della Mattonella
140 m
Antichi Sapori Partenopei
150 m
Mostra tutto

Caratteristiche

Rif.:
61124088
Piano:
2 di 4 con ascensore (Piano basso)
Camere da letto:
2
Arredamento:
Completo
Condizionamento:
Autonomo
Ascensore:
Mostra tutto
Prezzo Prezzo
€ 400.000
Rata mutuo Rata mutuo
€ 1.833 / mese
Spese annue Spese annue
€ 1.200
Proponi il tuo prezzoProponi il tuo prezzo

Classe Energetica

G
G
G
G
G
G
G
G
G
EP globale non rinnovabile:
175.00 kW h/m² anno
EP globale rinnovabile:
175.00 kW h/m² anno
EP invernale del fabbricato:
EP estiva del fabbricato:
Anno di costruzione:
1940
Riscaldamento:
Autonomo
Tipo impianto:
A radiatori
Tipo alimentazione:
Metano

Ti interessa visionare l'immobile?

Fissa un appuntamento  Fissa un appuntamento

Richiedi informazioni

* Questi campi sono obbligatori

Calcola il tuo mutuo

Semplice e senza impegno
Anticipo

( % )
Mutuo

( % )

pochi semplici passi

inserisci i tuoi dati
Questionario completato
Grazie per aver richiesto un appuntamento senza impegno con un nostro Consulente del Credito e Assicurativo.

Hai inserito correttamente tutti i dati necessari e a breve riceverai una e-mail con un link da convalidare per inviare i tuoi dati.
Affiliato
Cometa Immobiliare Srl
Via Crispi, 50 80133 Napoli (NA)

Il nostro staff


  • Morena Bellè
    Coordinatrice

  • Alessio Ceriello
    Collaboratore

  • Mario Patriciello
    Responsabile

  • Fulvio Ruggiero
    Collaboratore
Via Crispi, 50 80133 Napoli (NA)
Zona: Crispi-Chiaia-P.co Margherita-T. Tasso-A. Falcone
Mostra su mappa
Orari: lunedì - venerdì 09:00-13:30 / 16:00-20:00, sabato chiusura ore 19:00; aperti la domenica 10:00-12:30.
Affiliato
Cometa Immobiliare Srl
Via Crispi, 50 80133 Napoli (NA)

2025 Tecnocasa Franchising S.p.A. - P. IVA 08365160152 - Via Monte Bianco 60/A 20089 Rozzano (MI). Ogni agenzia ha un proprio titolare ed è autonoma. Privacy policy | Policy utilizzo | Cookie policy